Ко мне обратилась семейная пара с двумя детьми, для разработки интерьера 3-х комнатной квартиры, площадью ~ 100 м² в новостройке.
Ключевыми пожеланиями клиентов были: • У каждого ребенка должна быть своя изолированная комната; • Необходим большой круглый или овальный стол минимум на 4 человека, с возможностью трансформации до 6-8 посадочных мест; • Хотелось бы иметь барный стол; • Предусмотреть отдельно стоящий холодильник типа side by side; • Должно быть много мест для хранения, т. к. не любят, когда вещи на виду; • Перепланировка должна быть официально согласована в БТИ; • Наличие 2-х санузлов, в одном из которых должна быть душевая кабина.

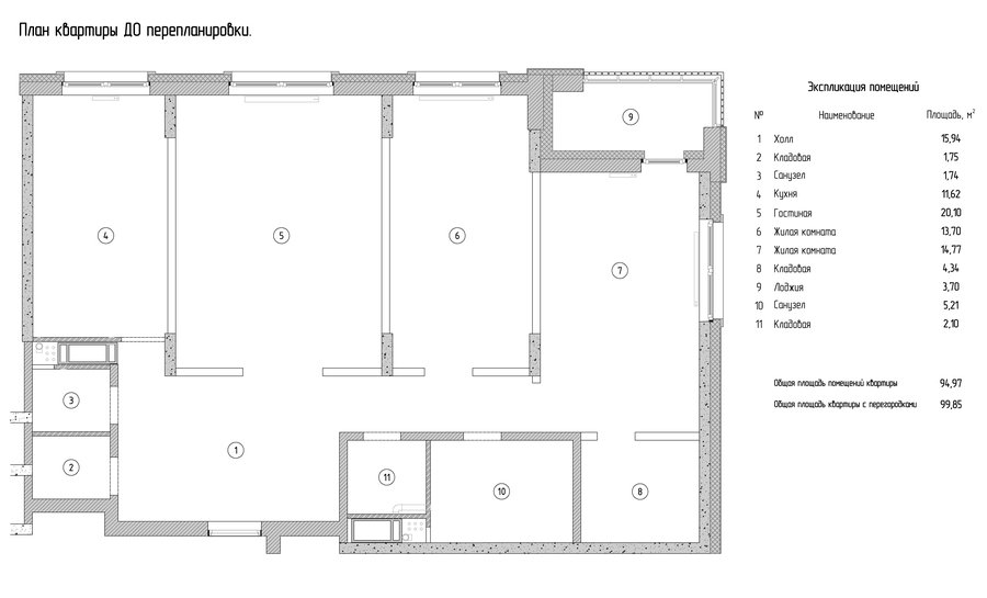
До перепланировки это была 3-х комнатная квартира.
Реализовать все пожелания заказчиков на данной площади — достаточно сложная задача, т. к. исходная планировка имела откровенно неудачное расположение несущих колонн и ограничение по организации входа в помещение кухни (№ 4 на плане ДО перепланировки), зажатого между несущей колонной и вентиляционным блоком, переносить или демонтировать которые нельзя.
Фактически было необходимо сделать из 3-комнатной квартиры — 4-х комнатную, грамотно организовав зону «кухня-гостиная-столовая».

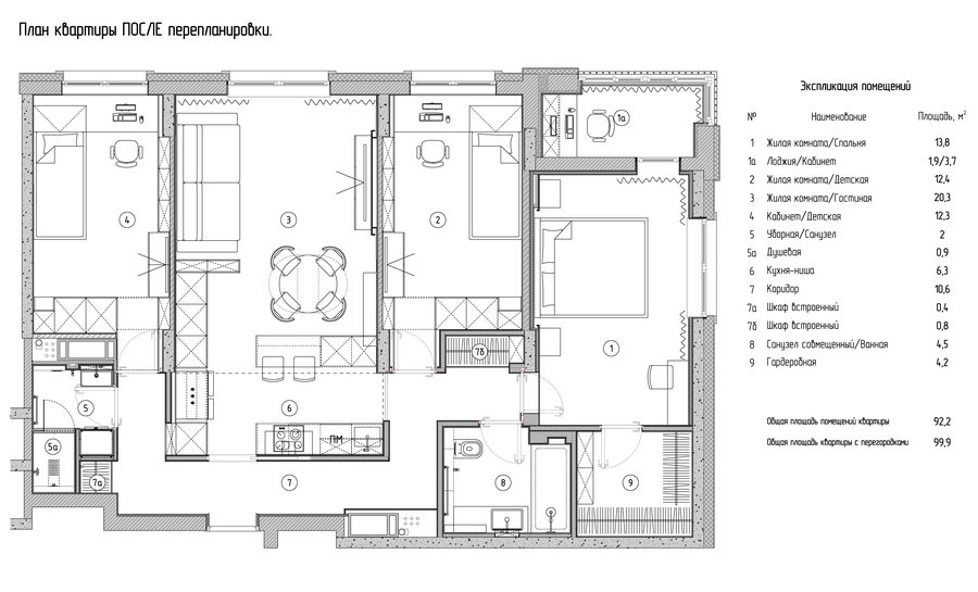
План квартиры ПОСЛЕ перепланировки.
Предложенное мной решение предполагало перенос будущей кухни в зону холла (прихожей) с образованием единого пространства «кухня-столовая-гостиная». При этом помещение бывшей кухни перепрофилировалось под детскую комнату, и формально, для согласования в БТИ, «проходило» как кабинет.
Такое решение законно, т. к. площадь кухни имеет площадь более 6 м² и располагается над нежилым помещение соседа снизу.
В результате проделанной работы удалось реализовать главное пожелание моих клиентов — выделить каждому ребенку свою изолированную комнату.
Визуализация зоны «кухня-гостиная-столовая». Листай вправо, чтобы увидеть больше.
Визуализация детской. Листай вправо, чтобы увидеть больше
Визуализация зоны спальной комнаты. Листай вправо, чтобы увидеть больше
Визуализация кабинета. Листай вправо, чтобы увидеть больше
Визуализация зоны прихожей. Листай вправо, чтобы увидеть больше
Визуализация зоны ванной комнаты. Листай вправо, чтобы увидеть больше
Визуализация зоны санузла с душевой кабиной. Листай вправо, чтобы увидеть больше
В настоящее время проект находиться на стадии реализации, за которой можно следить в моих социальных сетях. @Sergio_Falkoni



























